Architect, redevelopment projects, APL, commissioning

Architect, redevelopment projects, APL, commissioning

№156018
Created: May 16 2022
Architect, redevelopment projects, APL, commissioning Astana - photo 1
Architect, redevelopment projects, APL, commissioning Astana - photo 2
Architect, redevelopment projects, APL, commissioning Astana - photo 3
Architect, redevelopment projects, APL, commissioning Astana - photo 4
Address: Astana, Aqmola Oblysy, Kazakhstan
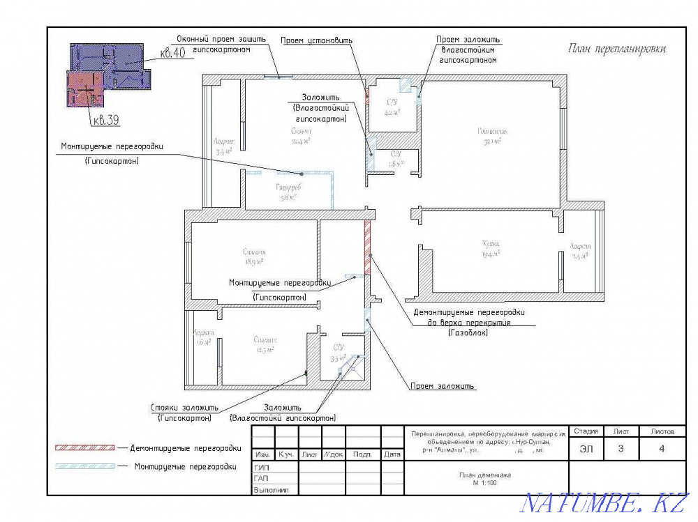
Do you need to legalize redevelopment? We will help! ArtBuildingCom Studio will perform for you: • Design Assignment (APZ) • Redevelopment or reconstruction project • Draft design or technical design • Commissioning certificate We will help you with project approval and redevelopment legalization! Contacts: Tel: Call: +77004108476, WhatsApp: +77004108476, We are waiting for your calls!
№156018
Created: May 16 2022
Log In or Sign In to leave comment.
noname
Was online november 20 09:44
Do you want more people to see this listing?
Promote listing
Back to Top